0755-28868182
手機: 18938889793
郵箱:1941602237@qq.com
QQ:13713900628
地址:深圳市龍崗區橫崗街道四聯社區排榜興旺路88號一樓
模胚加工廠家帶你認識 剃須刀外殼雙色模具設計
發布時間:2019-08-24 11:14:58
1. 產品分析
剃須刀外殼產品如圖1所示, 為了提升產品品牌價值,使產品使用手感舒適,剃須刀外殼采用了ABS和TPE兩種材料組成,在硬膠ABS的基礎上注塑軟膠TPE。
從產品圖可以看出,塑件的形狀為不規則的曲面,內側有互相平行的凹槽,外側為弧形曲面不能存在分型夾線,因此,塑件的內側和外側都需要滑塊抽芯。塑件外形的不規則性,對于雙色模具的設計和制造來說帶來了很大的難度,需要很高的模具制造精度。
實踐表明,軟膠TPE在硬膠ABS上的粘合力優異,屬于理想的雙色模具材料組合。
圖1 剃須刀外殼產品圖


2. 模具設計要點
2.1.雙色模具類型的選擇
歐洲的雙色模具,大多是基于ARBURG注塑機設計的,一個料管水平,另一個料管垂直。ARBURG注塑機通過選擇模塊化的注塑單元,為不同的塑膠制品選擇特定的機器配置。通過增加不同的注塑單元模塊,實現單雙色機器通用,ARBURG一臺機器也可以實現立式機器和臥式機器兼用,可以發揮最大的效益。因此歐洲的雙色模具,是從模具頂面和側面兩個不同方向注塑的,這樣只需要一個模胚,模具的旋轉是通過固定在注塑機動模側的雙色轉盤實現的。而日本和臺灣的雙色注塑機,都是具有兩套平行的注射系統。本文所設計的雙色模具是基于日精DC120T雙色注塑機的,因此模具需要兩套模胚。

2.2 模胚加工設計
兩套模胚的雙色模具,具有兩個完全相同的后模,而兩個前模型腔是不同的,用于注射不同的物料。這就要求兩套模胚完全相同,由于需要互換配合,模胚需要具備很高的精度。一般要求模具的加工精度在0.01以內。注意模胚的導柱導套孔仍然需要基準角偏置,以防加工時出錯,和普通單色模具一樣。另外一點需要注意的是模具必須設計成三板模的形式,在一次注塑后,二次注塑前,水口料需要及時分離。
2.3 側向分型和抽芯機構的設計
對于雙色模具來說,側向分型和抽芯機構的設計給模具設計帶來很大的難度。由于兩套模胚的后模是完全相同的,對于需要設計側向抽芯的塑件,滑塊盡可能設計成前模滑塊,本例中,后模的內滑塊,也是完全設計在后模內。盡可能避免設計后模滑塊,前模鏟機的結構,這種結構設計在后模旋轉后,很難配合,也增加了模具的復雜性。
2.4 模具排位設計
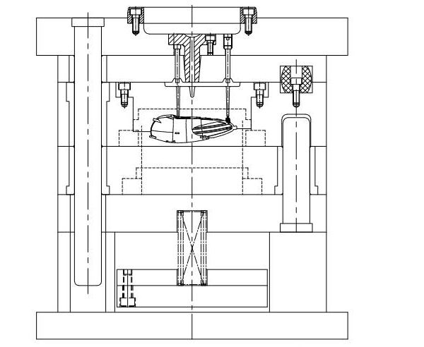
根據注塑機的能力,設計1出1的模具結構,模具設計圖見圖2,日精DC120T雙色注塑機的碼模位置見圖3,選定非標模胚DDI2530,為了適合機器的旋轉,特將模胚的角部做了大的倒角。設計雙色模具時,模胚的大小一定不能超出機器允許的碼模范圍。
2.5 澆口設計:
硬膠ABS采用兩點進膠,一點位于塑件頂部,成型后被軟膠TPE所覆蓋,另一點在工藝骨位上,最后被剪掉。軟膠TPE一點進膠,同樣在塑件的頂部邊緣,成型后產品組裝時可以被蓋住。
2.6 運水設計
對于兩個模胚的雙色模具,冷卻運水的設計非常關鍵。冷卻運水設計的水管不得妨礙模具的旋轉。注塑機的冷卻運水從機器的中心運水凸臺上接出,見圖3,因此,模具的運水設計出口只能是在操作側和非操作側,不能設計在天地側。


3.結束語
經過試模后表明,模具結構設計合理,達到客戶的使用要求。

當前位置: